Balaton északi part
Új vízparti nyaralója lehet a Balatonnál
Balaton északi partján, jó helyen, a vízparton, 485 m2 térmértékű, önálló helyrajzi számon nyilvántartott, építési telek eladó. A telek átlagos szélessége 19,40 méter, átlagos hossza 24,82 méter.
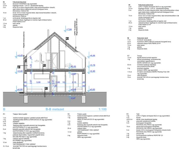
A kis telekre egy kétszintes hétvégi ház van tervezve, melyet megvalósítva új nyaralója lehet. A kétszintes nyaraló 9,15 m x 8,0 m külméretű. A tervezett koncepció megfelel a helyi előírásoknak. A nyaralóépület megépítésével lehetőséget kap arra, hogy szabadideje nagy részét, a vízparton töltse és élvezze a Balaton nyújtotta élményeket.
A telek előtt nem nyílt víz van, hanem 125 méter mélységű nádas, melyen keresztül stég húzódik. Az ingatlan nagyon csendes, nyugodt helyen van. 153 méterre van az országút és a vasút.
A kis telekre egy kétszintes hétvégi ház van tervezve, melyet megvalósítva új nyaralója lehet. A kétszintes nyaraló 9,15 m x 8,0 m külméretű. A tervezett koncepció megfelel a helyi előírásoknak. A nyaralóépület megépítésével lehetőséget kap arra, hogy szabadideje nagy részét, a vízparton töltse és élvezze a Balaton nyújtotta élményeket.
Minden közmű be van vezetve: víz, villany, szennyvízcsatorna, hírközlés.
A vízparti építési telek irányára a tervvel együtt: 199 millió Forint.
Tisztelt érdeklődő! Amennyiben az ingatlan felkeltette érdeklődését, szíveskedjék minden elkötelezettség nélkül, személyesen engem, Lőkös Gáborné Erikát felkeresni. További információkkal szolgálok, és megszervezem az ingatlan megtekintését. Kérem, hogy a további tárgyalásokat is velem szíveskedjék folytatni! Elérhető vagyok a 06-30-218-0000 telefonszámon. Várom hívását!









