Balaton déli part
Nyaralva biztosíthatja jövedelmét
A Balaton déli partján, önálló helyrajzi számon nyilvántartott, közvetlen vízparti, 2092 m2 térmértékű, teljesen bekerített, összközműves telken, kb. 663 m2 nettó hasznos alapterületű, fiatal vendégház eladó.
A telek, 55 méter szélességben, kiépített partvédőművel, saját stéggel csatlakozik a Balaton medréhez. A meder is sekély, ideális kisgyermekek nyaralására. A telken lehetőség van gépkocsik, vízi járművek, felszerelések, stég tárolására. Autókkal a telken belül, a burkolt parkolókban lehet parkolni.
A tóparti üdülőtől a hajóállomás és sporthajó kikötő kb 2770 m, a vasúti megálló kb 2210 m, az M7 autópálya le és felhajtó kb 4110 m, a központ és bevásárlási lehetőség 2625 méterre található.
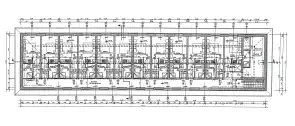
Az épület 2011 évben épült, korszerű, modern anyagok felhasználásával. Az épület külső méretei: kb 9,55 méter széles és kb 42,12 méter hosszú. Szerkezetek: Porotherm 44 cm vastag külső téglafalak 15 cm vastag hőszigeteléssel, vasbeton födém, fa tetőszerkezeten Bramac betoncserép. Külső homlokzati nyílászárók 3 rétegű hőszigetelt üvegezésű fa szerkezetekkel, alumínium redőnyökkel, szúnyoghálókkal felszerelve.
A fiatak, közvetlen vízparti vendégház, kiválóan alkalmas arra, hogy a 48 fő elhelyezését szolgáló 18 apartman, szervezett kiadásából, jelentős bevételre tegyen szert.
A Cégbe bevitt, kiváló építésű, 12 éves üdülőépület, őrzi az értéket. A vendégházat hasznosíthatja, üzemeltetheti, hitelt vehet fel rá, zálogba adhatja, bérbe adhatja. A vendégház, alkalmas továbbá arra, hogy kiadásait, költségeit, az állóeszköz amortizációját elszámolja és leírja adójából.
A földszinten 6 db 2 szobás kertkapcsolatos apartman, az emeleten 12 db 1 szobás apartman lett kialakítva. A földszinti apartmanok 58,04 m2, az emeleti apartmanok kb. 20,77 m2 nettó alapterületűek. Az épület a két szinten összesen kb. 663 m2. A 18 db külön bejáratú apartmanban, összesen 48 fekhely található.
Az ingatlanba minden közmű be van vezetve, így a vezetékes ivóvíz, a villany, a szennyvízcsatorna és a vezetékes földgáz. Távfelügyeletre bekötött riasztó, kiépített kamerarendszer, kaputelefon van.
Az apartmanok geotermikus energiával télen fűthetők, nyáron hűthetők a falfűtés/falhűtés alkalmazásával. Az áram-, hőmennyiség és vízfogyasztás apartmanonként külön-külön mérhető. A villamos energia termelésbe besegít a kiépített napelem-rendszer.
Nagyobb társaság a fedett kerti pihenő alatt tud grillezni, bográcsozni és itt lehet az elkészített ételt elfogyasztani. Külső megközelítésű a közös konyha, a kazánház és az illemhely.
Az ingatlanvagyon, idegenforgalmi (szálláshely-szolgáltató) Cég tulajdonában van. Az ingatlanvagyon, az adósságmentes (tehermentes), átvilágítható Cég üzletrészeként is eladó. Irányára: 1,524 milliárd Forint. Az ár az ÁFA-t tartalmazza. Amennyiben az ingatlanvagyon az azt birtokló Cég üzletrészeként kerül eladásra, illetve megvételre, több vevő esetén üzletrészenként kerül eladásra, akkor üzleti szempontból, jelentős kedvezmény érhető el, Vevő javára.
További információk (cím, megtekintés), személyesen, egyeztetett helyen és időpontban kaphatók. Időpont-egyeztetéshez legyen szíves felhívni Lőkös Gáborné Erikát a 06-30-218-0000 telefonszámon! Kérném, hogy továbbra is velem szíveskedjék tartani a kapcsolatot!















